Single wide manufactured homes have come a long way since the trailer houses of the early 1930s. Today’s new designs range anywhere from as small as 500 square feet to over 1,000. With many layouts and decor styles to choose from, the possibilities are endless. Today, we are sharing three single wide manufactured homes that offer different features and decor styles that make them popular choices.
Want to know more about the history of mobile homes? You can read more here: The History Of Mobile Homes Is Fascinating.
The Fox Creek From Fleetwood Homes
Our first design is the Fox Creek from Fleetwood Homes and has 3 Beds and 2 Baths. This 902 square foot home is available for delivery in Virginia, Delaware, Kentucky, New Jersey, Pennsylvania, North Carolina, Maryland, Washington DC. Currently being sold for around $49k, this split floor plan is a popular model because it offers a choice of 2 or 3 bedroom option depending on the needs.


Related: Choosing Furniture for Small Mobile Homes.




The 926 Advantage Plus 7616
The second of our three single wide manufactured homes is the 926 Advantage Plus 7616 from Clayton Homes (not sure why they name them such strange names!). Starting in the $80,000 range for the basic model. Of course if you make changes or add options that number will climb. This design is also available in the eastern part of the U.S. and offers more upgrades than a basic single wide mobile home design including:
- A kitchen island
- Double sinks in the master bath
- Separate tub and shower
Also, this design offers a more finished look on the walls and ceilings, no battens or popcorn ceilings in this home!







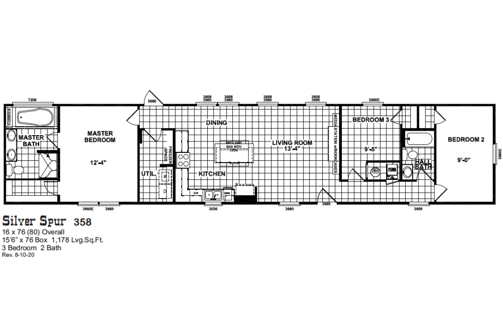
The Silver Spur 358 From Oak Creek Homes
Our final home is offered from Oak Creek Homes and has a starting price of around $91,000. Featuring a newly designed kitchen with an island as well as plenty of cabinets and a nice open floor plan. Another feature we like about this design is the placement of the heating vents in the ceiling rather than the floor which helps to maximize space. There’s also LED lighting throughout which is very contemporary. This home is offered in the Southwestern part of the country, but the good thing about these designs is that if you see a home you like, more than likely your local dealer can help you find a home close to that design.




We are not a big fan of the wall board on the vanity wall but other than that this bathroom is pretty awesome.



Whether you are just starting out, looking for a temporary home while saving to build or buy your dream home, or have decided to downsize, single wide manufactured homes are a great solution. With prices ranging from 20k’s to upwards of 90k, you can find the perfect home to meet your budget and needs.
As always, we thank you for reading Mobile Home Living.
Comments
5 responses to “These 3 New Single Wide Manufactured Homes Are Simply Splendid”
You would need to go directly to the dealer to find out what upgrades are available and what the final cost might be.
Where are the upgrade options for the homes and the pricing
I am a married senior on social security looking for a 2/2 bd Rm mobile home located in GA
What is the Best Buy when only have a minimal amt of ins money and disabled retired on minimal social security,has ins money due to fire loss, still homeless.not sure enough ins money on my total loss and still homeless for a year. Have land I am still making payments on??? This disabled senior and widow needs a home ASAP.any help available. 2 Bedroom may work. I had a 3bed room,2 bath older model that burned down , now I am homeless and have a bank loan ,what would be the beast plan for moving back home on my land??
NIce. Very well trimmed. They all look very liveable.
I’d much prefer that wall board over any paper covering like here in my own shack. Criminal cheapness for as actually nice as it is.