There are so many choices when it comes to mobile home designs these days. From tiny homes to massive manufactured homes, there is something out there to meet just about any family’s needs. Today we are exploring 3 larger designs that are perfect for bigger families.
Related: How to Find the Best Manufactured Home Floor Plan.
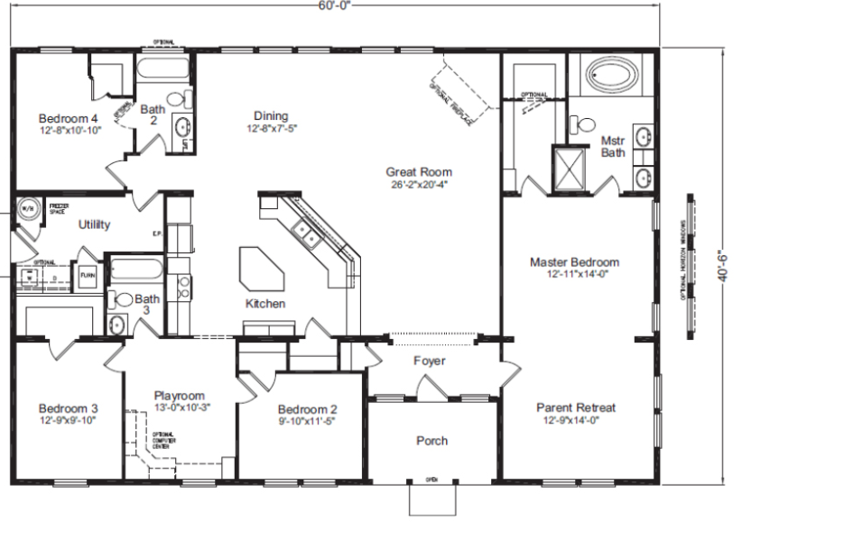
Timber Ridge Elite by Palm Harbor
Our first find is the Timber Ridge Elite that is manufactured by Palm Harbor. With a starting price tag of $227,888, this home is only available on the west coast. Here’s the description from the site:
With four bedrooms, three full baths and 2,635 square feet of living space, the Timber Ridge Elite manufactured home offers excellent value for an outstanding architectural design. It all begins with the open floor plan that brings together a spacious kitchen and dining room with an amazing great room. The kitchen has a wealth of counter space and convenient center island. The combination of drop and recess lighting ties in with a long breakfast counter that provides the versatility to use the space as an eat-in kitchen. That allows homeowners to consider the full dining area for formal use. But the adjacent great room lifts the sense of spaciousness of the 40×68-foot home to the next level. Strategic lighting and natural window views make this large manufactured home incredibly inviting.
Just as the central open floor plan provides rich spaciousness, the private rooms are well thought out. The three non-master bedrooms are roomy and conveniently located near bathrooms and a separate game room. The large master bedroom goes much further than many home designs in terms of luxury and convenience. Going above the idea of a walk-in closet, this manufactured home offers an entire walk-in room for clothing. The master bath enjoys two separate sinks and vanity counters and a walk-in shower. But the centerpiece of this space is the relaxing tub. In terms of value, the Timber Ridge Elite offers high-end value at a reasonable price per square foot.










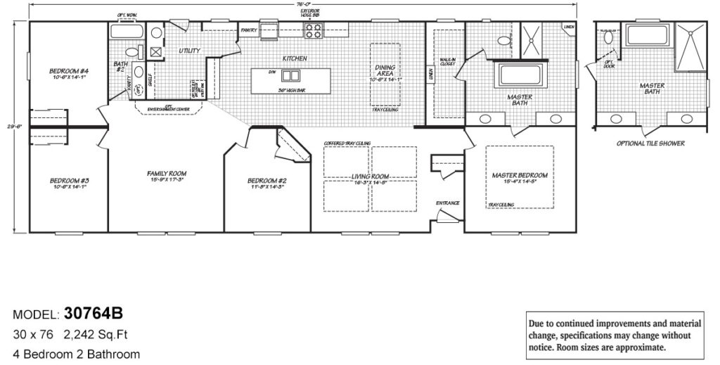
Champion Homes Avalanche TP4266A
Our second of our massive manufactured homes is from Champion Homes. At 2421 square feet, this home has 4 bedrooms, 2 bathrooms, tons of living space, and a corner porch! We especially love the hickory cabinetry throughout the home. We weren’t able to find a price for this one listed online, but we would think somewhere in the $190,000’s range.







The Barrington by Fleetwood Homes
There is so much to love about our final find. The Barrington features trey ceilings accented by a reclaimed wood look. 4 bedrooms, a living room, a family room, and over 2240 square feet make this open floor plan home perfect for a large family.
Unfortunately, we weren’t able to find a base price for this home either. However, with all of its features, we are sure it would be over $200,000 easily.









All 3 of these massive manufactured homes are fully customizable with tons of optional upgrades. Whether you are looking for just the standard features, or you want to add all the bells and whistles, these homes are all be great choices. Of course, these homes are pricier than homes we typically share online but that’s the great thing about manufactured homes, you can personalize them to meet your family’s individual needs!
We would love to hear your thoughts on these massive manufactured homes. Think they are worth the price? Or are they overpriced for a manufactured home? Tell us in the comments below!
As always, we thank you for reading Mobile Home Living.


