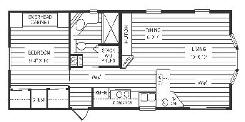
Home like this Park model single wide are some of my favorite manufactured homes. Their layouts are usually excellent. The designers think of proper solutions for everyday issues that arise in small homes. Maximizing the space and manipulating the layout so that the home flows well is always a high priority. This home is a perfect example that.
I recently stumbled upon The Starfish by the Lee Corporation. At 37′ long by 13’4″ wide they are packed with storage space and excellent design. All 495 square feet of this home is beautiful!
This park model single wide home really sets itself apart with the bright white kitchen and ample windows. I love the layout because it’s simple and it is a place I could easily live in.
What are some of the features you look for in a home? Is there one feature that makes or breaks the home for you?
Love Park Model Homes? Check out these beauties!
These Park Model Mobile Homes with Amazing Views are Dream Homes.
I do apologize for the lack of posting recently. Lot’s of great things going on and of course year-end is a bit chaotic at my job.
Mobile and Manufactured Home Living has lots of great things coming your way in 2013! New partnerships have been fostered and lots of ideas are being thrown around. Of course, you will always be our top priority!
I’m honored to have you here and I hope to offer you lots of featured homes and more great information to help make your home the best it can be. Just keep stopping by to check in!









