Tag: New Manufactured Home Model Tours

  • Double Wide Design That Wows

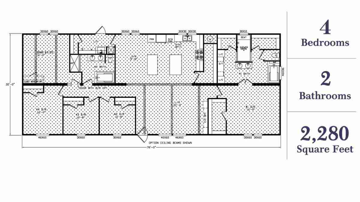
    The Manchester is a double wide design with everything you could think to want in a manufactured home. From crown molding to double closets in the master bath, this is a high-end manufactured home. There’s even the option to change the floor plan to 5 bedrooms and 3 baths with the 3rd bath being en-suite. Take a look!

    High-End, Inside and Out

    The Manchester is built by Hamilton Homebuilders in Alabama, with a starting listing price of $175,000 for the 4-bedroom option. It includes many features that make this home stand out. We especially love the color scheme which is a nice change from the usual grays that are so common these days. Also, if you aren’t a fan of the exposed beams, they are totally optional.

    Love The Fireplace In The Built-In.
    Huge Kitchen.
    This Is A First, Two Islands!
    Love How Spaced Out The Master Bath Is.

    One of the top reasons that manufactured homes are such a popular option, is their versatility. The Manchester can have 4 bedrooms with an extra room that can be used as an office, den, or even a playroom. Or, if need be it can be a 5 bedroom with an en-suite bath in the 5th bedroom, (perfect for a mother-in-law, or teenager!)

    4 Bedroom/2 Baths
    5 Bedroom/3 Baths

    A Look at the Exterior of This Double Wide Design

    The exterior of this double wide design is full of curb appeal. Although the windows lack shutters, which can add extra charm to a manufactured home, the wide window molding still gives the home a distinctive look. Add to that the faux brick and shaker look around the entrance and you have an exterior design that makes a statement. All the home needs is a nice walkout porch.

    double wide design manchester exterior
    We Love Everything About This Double Wide Design Exterior.

    If there were ever any doubt about how far manufactured homes have come since their humble beginnings, this double wide design should put that to rest. With over 2200 square feet of living space, this home can be anything you want it to be. Are there features you love about this home or things you notice are missing? Let us know what you think!

    Don’t forget, we are always looking for remodels to feature. Check out our get-featured page and learn how to submit your home.

    As always, thanks for reading Mobile Home Living®.

    P.S. If you would like to join our newsletter list and receive our top articles on topics from repair to remodel straight to your inbox once a month join here!

  • The Vintage Farmhouse Flex Is Charming

    The Vintage Farmhouse Flex from Palm Harbor Homes brings together the super popular Farmhouse style with the added flexibility of multiple floor plan options such as the number of bedrooms or flex spaces you and your family may need.

    A Glimpse Inside

    One feature that seems to be missing from most mobile homes is an entryway. However, the Vintage Farmhouse Flex offers a nice sized foyer before opening up to the openness of the main living space. Also, with the flex room just off the living room, you could easily use it as a home office/gym, playroom, or even an extra bedroom.

    All That’S Missing Is A Coat Closet.
    Trey Ceilings Add To The Open Look Of The Space.
    A Built-In Electric Fireplace Becomes The Focal Point Of The Room.
    So Many Options For This Room.

    A Kitchen Built for Families

    The kitchen and dining area really makes a statement in the Vintage Farmhouse Flex. A modern layout, nice-sized center island, large pantry, as well as a breakfast nook and separate dining are just some of the features we love about this design. Subway tiles also make a great backsplash with a nice breakup over the stove. All in all this kitchen is a winner!

    The Corrugated Tin Is A Nice Touch Without Being Too Much.
    Huge Pantry Is A Plus.
    The Open Shelves Over The Cabinets Is Perfect For Displays.
    This Laundry Room Is As Big As A Bedroom.

    The Master Suite is Awesome

    All of the rooms in this home design are roomy, however the master suite is the most spacious of all. The only question we have is whether the accents around the transom window were really necessary. With their placement, it really limits where you can place the bed, and if you are like us, you want to have the flexibility to move the furniture around! However, we love everything else about this space, including the large master bath and closet.

    Not Sure About That Wall.
    Sliding Barn Doors Add To The Decor Plus Are Great Space Savers.
    Built-Ins In The Master Closet Are A Plus.
    You Can Never Have Enough Storage In The Bathroom.
    Dressing Table With A Transom Window Above To Give Some Additional Light.

    The Vintage Farmhouse Flex is Full of Options

    One of the greatest things about mobile homes is that they offer the same flexibility for customizing as a stick-built home, usually at a lesser cost. Whether you are looking for 3 bedrooms or 4, a home office or a family room, there’s not much you can’t customize with today’s manufactured homes. And, although this particular model is only available in a couple of states, similar models can be found in your particular area.

    Farmhouse Flex Floor Plan
    Look At All Those Options.
    Vintage Farmhouse Flex Exterior
    Today’S Manufactured Homes Offer Great Curb Appeal.

    At over 2350 square feet this 3 bedroom/2 bath home would technically be considered a triple-wide with its family room addition at the front of the home and is plenty roomy enough for any size family. We weren’t able to find an exact listing price, however, similar models ranged in the low $100’s, with prices going up depending on the customization options.

    If you enjoy looking at manufactured home designs, be sure to visit our Manufactured Home Model Tours section to see what other home designs we have shared over the years and also learn about manufactured home builders and what it takes to be considered a good builder.

    We would love to hear your opinions on the Vintage Farmhouse Flex. Love it? Hate it? Be sure to comment below and tell us what you think!

    Thanks for reading Mobile Home Living.

  • 10 Great Manufactured Home Floor Plans

    10 Great Manufactured Home Floor Plans

    Floor plans have an astounding effect on people’s lives. How we live and interact with our family is greatly impacted by a home’s layout. We need a home to meet our lifestyle and provide style and convenience. That is especially true when it comes to manufactured home floor plans.

    In fact, online buyers agree that floor plans are more important than images when searching for a home and are vital to the buyer’s process.

    Those of us planning on a manufactured home remodel have probably created a floor plan or at least drawn out the idea – it helps us visualize the changes.

    We’ll take a look at 10 great floor plans for mobile and manufactured homes. From vintage to modern, we’ve found some great floor plans that maximize space and delivers a great flow of the home.

    Vintage Mobile Home Floor Plans

    We’ve discussed how the 10 foot wide mobile home completely changed the mobile home industry. When mobile homes were only 8 feet wide, due to highway restrictions, the homes had no hallway. You had to walk through one room to get to the next. Ten foot wide mobile homes allowed true privacy and were an important step for mobile homes to become better suited for full-time living.

    This Palace ‘Ranchome’ from 1956/57 shows the concept:

    manufactured home floor plans-56-57 Palace

    There were plenty ingenious designs during the mobile home golden era. This vintage mobile home ad shows the floor plan for a fold-out home. Two hinged walls let out to provide additional space.

    manufactured home floor plans-mobile home with fold out

    Single Wide Manufactured Home Floor Plans

    Single wides have a lot of living space in a small package. These 4 designs prove the industry has perfected small space living.

    manufactured home floor plans-Sunwood - skyline homes floor plan

    manufactured home floor plans-single wide floor plan image of interiormanufactured home floor plans-single wide floor plan image

    The home above is from Skyline Homes and called the Sunwood. It has a kitchen on the end along with a pantry and an entry closet.

    The home below was found on floor plan website and also shows an end-kitchen. I’m a sucker for kitchens on the end!

    manufactured home floor plans-single wide manufactured home floor plan - use of space

    This next floor plan from Country Lane Homes is very common in manufactured homes. It maximizes space and allows for separate sleeping quarters – essentially an adult side and a kid side. The living room and kitchen, or main living area, is right in the middle.

    manufactured home floor plans-single wide floor plan - bedroom on end

    Below is a smaller single wide from Jac Homes called The Imperial with a similar design:

    manufactured home floor plans-single wide floor plan - bedroom on end

    This 1962 Skyline Single Wide is a Vintage Mobile Home Beauty

    Double Wide Manufactured Home Floor Plans

    Double wide homes have a lot more space to work with. The sky is the limit when it comes floor plan possibilities.

    This 1976 Bendix mobile home has always been a favorite layout of mine.  Circular kitchens are awesome!

    manufactured home floor plans-1976 bendix mobile home floor plan

    The Sierra is a model from Palm Harbor Homes. It’s huge and well designed.

    manufactured home floor plans-palm harbor home double wide floor pla sierra

    The Brookstone from Skyline is another double wide that uses space well. It has a great end design.

    manufactured home floor plans-Brookstone double wide - skyline homes - floor plans

    manufactured home floor plans-brookstone manufactured home design

    Clayton Homes has a double wide with a smart floor plan. It includes a large living area complete with a snack bar in the center.

    manufactured home floor plans-Clayton Homes Floor plan for double wide

    Manufactured home builders can create any floor plan. If they don’t have the exact design you want you simply select the floor plan closest to your needs and customize till you get it.

    There are so many possibilities you may find yourself sinking in choices – one helpful resource is the book called Right-Sizing Your Home: How to Make Your House Fit Your Lifestyle.

    The floor plan of your home is important. You cannot easily change it like you can decor so it’s vital that you chose the design that will suit your lifestyle and offer convenience and style for years.

    Thanks so much for reading Mobile Home Living!

  • New Manufactured Home Design is Winning Awards

    New Manufactured Home Design is Winning Awards

    It may not be the Oscars, but for manufactured home builders the Manufactured Housing Institute’s Annual Manufactured Home Design Awards are a pretty big deal. Awards are given for several different categories ranging from tiny homes to top interior designers. And, as always, we wanted to share with you a look at this year’s mid-size manufactured home winner, the 2018 new manufactured home design from Champion Home Builders.

    If you missed some of the past winners, be sure to check out the 2017 Best New Manufactured Home Design and 2016’s Best New Manufactured Home Design Winner.

    The Kingsbrook 34 By Champion Home Builders

    This year’s new manufactured home design winner comes from Silvercrest, a division of Champion Home Builders. Manufactured Housing describes  The Kingsbrook 34 as having a unique California Bungalow concept that offers tons of curb appeal.

    2018 new manufactured home design-exterior
    Would Be A Perfect Addition To A Neighborhood.

    Farmhouse Style Creates an Inviting Home

    Open Living Space

    The living room, dining room, and kitchen all blend together to form an open living space that is very popular with families today. The entire interior is drywalled and is light and bright thanks to the many windows, including the transom windows over the fireplace.

    2018 new manufactured home design-interior
    Even The Ceiling Has Character! 

    I love these ceilings so much!

    2018 new manufactured home design-fireplace
    The Living Room Has So Much Character.

    Upscale Kitchen Design

    Our favorite room in this manufactured home is the kitchen. Rather than the standard rectangle kitchen island, there is an option to feature a square island. Both offer plenty of space for eating but also utilizes all four sides of the island. The sink, dishwasher, microwave oven, and a wine rack make great use of the area.

    Add to that all the additional storage space in this farmhouse style kitchen and you have the perfect kitchen.

    2018 new manufactured home design-kitchen 2
    So Much Storage Space!

    2018 new manufactured home design-kitchen 1
    The Shape Of This Island Allows For Multi-Use.

    Surprising Master Suite

    We have to say we were a little surprised by the master suite. The room could have used the same ceiling design that was used in the living area since the transom windows were there anyway. At the very least, trey ceilings could have added some style to the room. However, the placement of the windows does allow for the furniture to be moved around which is always a good thing!

    2018 new manufactured home design-master bedroom

    The master suite continues the farmhouse style with the choice of tile colors and white cabinetry. However, the medicine cabinet attached to the wall beside the beautiful his and her sinks takes away from the look of the space. We’re not sure if that is a factory-feature or a designer’s touch. Either way, it’s not working for us.

    We do like the size and placement of the soaker tub. Many of the recent homes we have seen are placing the tub as the centerpiece of the room and including windows around them which doesn’t seem to be very practical. Even with shades or one-way window film it can make a person nervous (or am I the only one?).

    The high placed windows over the tub allow for light without intruding and are just right for the room.

    2018 new manufactured home design-master shower
    The Tile Work Compliments The Farmhouse Decor Beautifully.

    2018 new manufactured home design-master bath
    The Placement Of This Soaker Tub Is Perfect.

    Options Galore for the Award-Winner

    Depending on your budget this new manufactured home design offers options for everyone. For example, you can choose the placement of the tub, the size of the vanity, and whether you want a separate shower in the master bath.

    You can also choose a traditional work center in the kitchen or the square multi-function island seen above.

    Finally, you can include the built-in entertainment center but it isn’t necessary if builtins aren’t your thing.

    manufactured
    A Look At The Floor Plan Without The Extras.

    2018 new manufactured home design-optional floor plan
    Love All The Options And Features Available.

    New Manufactured Home Design is Inspiring

    As you can see from this new manufactured home design, builders are working very hard to offer new and inspired designs. This manufactured home will fit nicely into any stick-built housing community.

    Thanks for reading Mobile Home Living®.

  • Which Brands Build the Best Manufactured Homes?

    Ever wondered who builds the best manufactured homes or what determines a good factory-built home from a bad one?

    Manufactured housing experts will always tell you that it’s all about the construction specs. The size and quality of the materials used in a manufactured home is the best determination of its overall quality and they aren’t wrong. The materials and construction are the top signs of a quality home. But nowadays, there isn’t much difference in building technique and materials between each company. At last count, we have around 61 different manufactured home builder or brands in the US. However, only 10 of those brands build 80% of all manufactured homes in the US.

    Even with different factories, there won’t be too many differences between the brands and models. The entry-level home built by Marlette isn’t going to be much different from an entry-level model made at a Norris factory. They are both Clayton Homes and likely get their materials from the same suppliers (likely owned by Clayton Homes).

    Therefore, we need to look beyond construction specs to find the best manufactured homes.

    Factors that Determine the Quality of a Manufactured Home

    In this article, we look at a few other factors that need to be considered in the hunt for the best manufactured homes. We’ll also share a few brands that seem to be doing a decent job at most of them (at least from the outside looking in).

    Construction Specs

    The most important factor for a great manufactured home is strong construction specs are the most important factor that determines the quality of a manufactured home but it isn’t the only factor. Read about the best upgrades to choose when buying a new manufactured home here.

    I M G 5338

    The Factory’s Employees and Management

    Another variable that determines the quality of the home is the people building it. There is a noticeable difference between homes built by people who care and people who don’t. That applies to factory-built and site-built.

    The construction of a manufactured home is streamlined in every way. One company brags that they have less than 5% of waste. That’s pretty impressive.

    However, homes are still constructed by people fro the most part. Still, when the crew building a manufactured home is well-trained and dedicated they will build better homes.

    A lot of variables are at play in the factory. Issues such as which employees are working together, worker morale, the weather, and even what day of the week the home was built will influence its quality.

    There’s a half-joking tip about factory-built items like cars and manufactured homes: you never want anything built in a factory on a Friday or a Monday. Fridays are bad because employees are ready for the weekend. Mondays are bad because they had that weekend.

    Still, factory constructed homes have far fewer variables that could interfere with the home quality compared to site-built home construction.

    After-Sale Service (Dealer/Builder Relationship)

    The best manufactured homes will come from dealers that have excellent customer service after the sale.

    The relationship between dealer and builder is crucial. Does the builder support the dealer and help them correct problems efficiently or is there a bunch of red-tape that both dealers and buyers need to maneuver through?

    Do the dealer and builder play the blame game? The blame game is a well-known ploy in the industry. Since manufactured homes typically only have a 1-year warranty the dealer makes an effort to run that time out by claiming that the buyer’s problem is the builder’s responsibility. The builder pushes the blame back to the dealer and this goes on until the 1-year warranty is up.

    Spend time to research how a dealer and builder handle issues after the sale.

    Installation and Setup

    Lastly, installation and set up play a huge role in the quest for the best manufactured homes.

    I’ve read that 80% of all manufactured home buyers’ complaints are caused by improper or incomplete installation. If that is indeed true, it’s a fairly easy issue to handle: just make sure the best installers are installing your home.

    You can have every inch of a home customized and stand in the factory to watch it being built but it won’t matter if it is installed improperly.

    A luxury manufactured home installed incorrectly will age quicker and have more issues than an entry-level model that has been installed correctly.

    What Makes the Best Manufactured Homes?

    Most builders are offering a model with at least a few of the following amenities and features. Regardless of who builds it, the best manufactured homes will have:

    • 2×6 with 16″ OC exterior wall studs
    • 2×4 with16″ OC interior studs
    • Roof pitch at least 4/12 (the higher the better) along with a minimum of R-38 Insulation
    • 9′ Sidewalls with R-19 or more insulation
    • Minimum 12″ eaves
    • Plywood exterior sheathing
    • Tyvek house wrap
    • 50 gal quick return water heater
    • PEX or copper water lines with a shut off at every water source
    • Plywood decking (sub-flooring) that has been screwed
    • 1/2″ Drywall with thicker molding and trims
    • Larger front and rear doors
    • 25″ wide countertops made from quality material
    • Real wood or Melamine Cabinets with adjustable shelving
    • Corian or Vitreous China bathroom fixtures
    • Sheet metal HVAC ducting

    Are These Brands Building the Best Manufactured Home?

    Skyline Homes

    Skyline Homes has some gorgeous models on the market. My neighbor had a double wide with log siding and huge end windows overlooking a deck. It was gorgeous.

    Skyline Homes has a 15-month warranty which is why it’s on my best manufactured home list. Most other builders offer the federally mandated 1-year warranty.

    Skyline Corporation and Champion Enterprises Holdings LLC recently merged and created Skyline Champion, the nation’s largest public factory home builder.

    Clayton Homes

    Clayton Homes is the largest manufactured home company in the US. Does that mean it’s the best manufactured home builder?

    With the right upgrades and specs, the Bordeaux by Clayton Homes could be one of the best manufactured homes on the market. Or, at least one of the nicest.

    Clayton Homes produces more factory-built homes in the US than any other company. Their experience alone should give them a lead in the race to build the best manufactuctured homes.

    10 Gorgeous Manufactured Home Models on the Market Today

    Palm Harbor Homes

    Palm Harbor’s has an article on their blog with reviews from owners whose homes survived Hurricane Irma. One homeowner said she received very little damage even though the winds were clocked at 175 mph. That’s impressive.

    Palm Harbor’s La Belle model could be another great manufactured home with the right specs.

    Oakcreek Homes

    I’m not too familiar with OakCreek Homes but they offer an extended 7-year home protection program. That’s not too shabby. Their website states that during the first year owners just dial a number and someone comes to the home and repairs it. After the first year and up to the seventh, they will reimburse owners for covered repairs.

    Oakwood Homes released a new series line called the Magnificent Seven. It’s available in several floor plans and can have up to 5 bedrooms. You can learn more about the series here.

    Silvercrest Homes

    SilverCrest is part of Champion Homes. Their website states that “more than half of Silvercrest’s workforce has at least 10 years’ experience.” That makes a big difference in manufactured home construction.

    Silvercrest also offers the Silvershield, a 7-Year Warranty. They are one of the only manufactured home builders in the Western U.S. that offers such a long-term warranty.

    Silvercrest Manufactured Home Double Wide 1
    New Manufactured Home From Silvercrest.

    Silvercrest’s Bradford series home has all the specs we think make for the best manufactured homes:

    Silvercrest Manufactured Home Double Wide 2
    Bradford Series From

    Related: Learn about 27 manufactured home builders here.

    Learn more about manufactured home builders in the book The Grissim Ratings Guide to Manufactured Homes (affiliate link).

    amzn_assoc_tracking_id = “mobhomliv-20”; amzn_assoc_ad_mode = “manual”; amzn_assoc_ad_type = “smart”; amzn_assoc_marketplace = “amazon”; amzn_assoc_region = “US”; amzn_assoc_design = “enhanced_links”; amzn_assoc_asins = “0972543635”; amzn_assoc_placement = “adunit”; amzn_assoc_linkid = “35680f189af50fe295dc8d5051fc22f2”;

    Related: Read our best tips on buying a new manufactured home.

    Summary

    The hunt for the best manufactured homes is complex and there’s more to it than just than looking at construction specs though those are very important.

    If installation errors really do cause 80% of all manufactured home complaints all potential home buyers need to put a lot more effort into finding the best installers in your area. Don’t just accept the crew that the salesperson recommends.

    Also, please read our article with 30 expert tips for all manufactured home buyers.

    Do you have any good experiences with a certain builder or model? Add it below – you may help a potential buyer find their dream home or avoid a bad experience.

    As always, thank you so much for reading Mobile Home Living®!

    Note: This post is not an advertisement for any builders or dealers. I’m simply sharing information that I think would be helpful to owners. I do not recommend one over another.



  • 4 New Manufactured Home Models We Like

    Mobile home builders are finally coming up with some new ideas for both single and double wide designs. These 4 new manufactured home models are new to the market for Spring 2019 and we think they all look great.

    Just click on the title of the home to visit the builder’s site.

    The Smokie Ridge Farmhouse from Meadowbrook

    At 1140 square feet the Smokie Ridge from Meadowbrook offers plenty of space.

    We especially love the 8-foot ceilings throughout, and a farmhouse kitchen sink. It also includes several of the 10 top upgrades that we recommend for new manufactured homes such as a higher pitched roof and exterior siding options.

    Shiplap walls around the fireplace and on the kitchen backsplash make a statement. The color of the shiplap is especially unique – we don’t see light tan shiplap much.

    Notice how the kitchen has a carousel shape? It kinda feels like a throwback to the carousel kitchens from the mid-to-late 1950s. Could the manufactured housing industry finally be going back to their roots for inspiration? We sure hope so!

    Black appliances seem to be making a comeback. White appliances are boring and hard to keep clean and stainless steel is a hard surface to keep fingerprints off. Black appliances solve both issues.

    Slanted walls are used in the living room around the fireplace, in the kitchen, and in the master bath with the soaker tub. These slants make for a unique space and are also a throwback to the mobile home designs in the late 1950s, when mobile home innovation was at its peak.

    If you rather see pre-owned mobile homes for sale check out our article, Our 5 Favorite Single Wide Mobile Homes for Sale in April 2019.

    MODEL E633-1154 By Destiny Builders

    The Destiny model, or MODEL E633-1154, by Destiny Builders, is a 3 bedroom and 2 bath home with 1834 square foot of living space.

    This stunner rivals many site-built homes today.

    One of our favorite features are the many wood accents throughout this home. A dark wood feature sits above the fireplace. White crown molding frames every wall, floor, and ceiling surface. And a trendy barn door separates the kitchen from the hallway access to the bedrooms.

    The kitchen features all the latest trends.

    Dark wood cabinetry, black appliances, and black tile backsplash create a stylish and easy to clean kitchen. A white island with marble countertop keeps the kitchen from being too dark.

    Wood beams across the ceiling and black iron light fixtures are a great look.

    The mixture of different wood tones and colors could make for a busy space but this home is cozy and easy on the eyes. The farmhouse style light fixture above the dining room tables is especially trendy. Choosing the right light fixture for mobile homes is important.

    The master bath offers his and her sinks, a monster shower with both a traditional showerhead and a rainfall option. Buyers have a choice between a soaker tub and a traditional bathtub.

    The floor plan is smart and unique. The front door enters into the kitchen and dining room with the living room directly ahead.

    We also like that the master bedroom is on one side of the home and the smaller bedrooms are on the other. This design is reminiscent of the 2017 Best New Manufactured Home Design Winner.

    This double wide would look great with one of the 45 manufactured home porch designs we featured.

    The Bexar from Buccaneer Homes

    Our friend Steve is always sharing new and cool home designs on his Manufactured Housing Facebook page and this single wide is no exception. The Bexar is right around 1170 square feet with prices starting in $60,000 range.

    This kitchen is gorgeous!

    The home has several distinctive features like the pillars between the living room and the dining room. and the wraparound kitchen this home is a steal for the price.

    This model features a split floor plan that is perfect for families with small children.

    The Jameson by Buccaneer Homes

    The Jameson by Buccaneer Homes is unique.

    I like the floorplan, the large windows, and the exposed brick in the main living space of the home.

    However, the different colors and textures of the open backsplash, flooring and faux wood beams on the ceiling may make the open living area a little too busy for many buyers.

    Fortunately, all new manufactured home models can be customized to any buyer’s taste.

    The kitchen is small looks small but still has everything a small family would need.

    The Jameson has all the most trendy textures and surfaces in home decor for 2019. The rustic wood and exposed brick are huge these days.

    Conclusion for New Manufactured Home Remodels

    It’s fun to look at all the new manufactured home models offered on the market. Unfortunately, new manufactured home builders and dealers rarely list the price of a home on their websites. You’ll want to call your local dealer to see if the home is available in your area.

    It’s fun to notice how builders different from each other even though they may be owned by the same company. Clayton Homes owns most of the builder brands you see above but you can still see a noticeable difference between the materials and layouts.

    Do you have a favorite new manufactured home model you love? Or perhaps one of the trends that you wish would just fade away? Let us know what you think!

    As always we appreciate you reading Mobile Home Living.

  • How Manufactured Homes Are Constructed

    How Manufactured Homes Are Constructed

    Understanding how manufactured homes are constructed can help you remodel or modify a home. This is especially true when you have to replace the flooring or move walls in a mobile home. Knowing the construction methods that are involved, and the order of construction, can help you plan your project better and save money.

    Manufactured Home Construction Basics

    Steel Chassis

    Both single wides and double wides (which are basically just two single wides) sit on a steel chassis.

    Steel chassis with outriggers in palm harbor facotry

    Steel beams with slight curvatures are welded together to create a cambered chassis.

    This is done to help even out or distribute the weight of the home. These curves are barely noticeable but are vital to a strong manufactured home that can withstand vibrational forces and transportation at 55 mph.

    The camber or curve of the steel chassis helps the home absorb shocks and distribute weight more efficiently.

    The best chassis are built with American steel. Cheaper Chinese steel is used in a few builders – try to stay away from those if you have a choice.

    Outriggers

    The ‘side to side’ beams have outriggers on the ends. Outriggers are the tapered edges that may or may not go to the very edge of the home.

    Cheaper manufactured homes will not have outriggers that go to the very edge of the home.

    Outriggers that go to the very edge are better because they hold the weight of the walls and the roof better. If the outriggers aren’t strong enough or doesn’t extend out far enough, the home’s perimeter walls and roof can sag.

    Besides the chassis and roof-down structural integrity, manufactured homes are built much like site-built homes.

    Floor Joists

    Once the chassis has been built to specifications, the builders will use a jig or template to built the floor joists from 2x6s or sometimes 2x8s for the higher quality homes.

    Palm Harbor homes uses computer aided design programs to help design their floor joists for each model.

    The heating and cooling vents, plumbing lines, and electrical cables will be installed through the floor joists. In some models, the ductwork and electrical will be ran through the roof trusses.

    Next, the subflooring and floor covering will be laid.

    How Walls are Built in Manufactured Homes

    Walls are built using wood boards called studs. Studs are the vertical boards and are normally 2″ x 4″ and spaced every 16″ in a manufactured home. That’s what the term 16″ OC, or ‘on center’ means in construction lingo. Better quality manufactured homes will have 2×6 studs and more affordable homes will have 2x3s. State laws and wind zones will determine how your manufactured home is constructed.

    Interior walls, sometimes called partition walls because they separate space and have no load bearing qualities, can be 2x2s and spaced 24″ apart.

    The vertical studs are held together with horizontal boards called bottom plates and top plates. Home Tips shares a helpful illustration of the parts of a wall:

    Walls around doors and windows are built differently to distribute weight down the sides of the rough opening. Structural headers are used above the doors and windows to reinforce the area. Oftentimes trimmer or king studs will be used (sometimes both but not as often).

    How Walls are Attached to Joists and Trusses

    The bottom plate of an interior wall is nailed into the floor joists. The floor and the roof will sandwich the walls to create a structurally sound wall.

    The perimeter walls of a manufactured home are attached to the floor joists using nails and 26 gauge metal straps as shown below. These are also called hurricane straps.

    The perimeter walls are attached to the roof trusses using metal straps and nails, as shown below.

    If your manufactured home’s roof truss sits completely upon a top plate it usually indicates a load bearing wall.

    Double Wides

    In reality, double wides are just two single wides. Each piece of a double wide has its own integrity and strength but together it creates an even stronger home.

    In the image below, you see one half of a double wide that has the interior and perimeter walls installed. Notice there is no roof, yet. Roofs are built separately from the rest of the home and installed after all interior work has been done.

    Double Wide Roofs

    Double wides use roof trusses that are

    Once the roof is installed over the walls it will create a strong web of structural integrity.

    Exterior Construction on New Manufactured Homes

    Some manufactured home builders do things a little differently. Some brands will put the roof on first and then add the exterior sheathing, others will add the sheathing on before the roof.

    Jacobsen Homes does the latter. Jacobsen Homes released a video on Youtube that shows their manufactured home construction process. Of all the videos I’ve watched they seem to call out other brands more often for cutting corners or using cheaper materials – I enjoy that.

    Exterior sheathing should be OSB or plywood. There is a product petrochemical product called Thermo-Ply. It’s cheaper and doesn’t seem to withstand the elements as well.

    Video Tours and Construction Videos

    We have added several of the top manufactured home builder’s construction videos below. This should make it easy for you to see how each company differs. Remember, though, a few of the brands below are owned by the same corporation so there really isn’t much of a difference.

    Also, keep in mind that these brands are showing their best models in these videos and therefore their best construction. Most models that builders offer will not have the materials mentioned.

    How Manufactured Homes are Constructed at Clayton Homes

    How Manufactured Homes are Constructed at Jacobsen Homes

    How Manufactured Homes are Constructed at Palm Harbor

    How Manufactured Homes are Constructed at Champion Homes

    https://youtu.be/LDU3s9Kf0HY

    How It’s Made TV Show Covers Factory-Built Homes

    https://youtu.be/wON_F2j1izI

    How Manufactured Homes are Constructed at Schult Homes

    How Manufactured Homes are Constructed at Golden West Homes

    10 Smart Upgrades to Get When Buying a New Manufactured Home

    A Better Look Inside a Manufactured Home

    If you want to visualize a double wide’s building process, this image should help you. I found it at Frey’s Mobile and Manufactured Home Sales website.

    how manufactured homes are constructed

    1. 2×10 #2 SPF or better floor joists on 16″ centers.
    2. Perimeter heat with wall mounted registers and boots.
    3. Shaw Acclaim 16 ounce casual texture carpet with 5 pound rebond pad.
    4. 2×6 Stud SPF or better placed on 16″ centers.
    5.  2×10 headers above all windows and doors.
    6. 7/16″ OSB exterior sheathing.
    7.  R-19 Owens Corning Fiberglass wall batt insulation.
    8. R-33 Cellulose Roof Insulation.
    9. Optional 7/12 roof pitch with 50 or 70-pound snow load.
    10. 2×6 Fascia plate.
    11. 7/16″ OSB exterior roof sheathing.
    12. Architectural Roof Shingles.
    13. Full-finish drywall throughout the home.
    14. Dual pane vinyl, single hung – single tilt windows.
    15. 36×80 vinyl clad steel insulated 6-panel door with storm front and rear.

    Learn about the 3 levels of quality and price here. 

    Conclusion – How Manufactured Homes are Constructed

    Knowing how manufactured homes are constructed is smart for those looking to remodel an older mobile home or buy a new manufactured home.

    Over the years, the manufactured home builders have tweaked their building processes down to a fine science and the quality of the homes has increased significantly.

    Building a home in a factory is a safer and far more affordable method of home construction.

    Advanced computer-aided design, specialized machinery, and tight inventory control has allowed brands to build manufactured homes at half the cost per square foot as a site-built home.

    Constructing a home inside a temperature controlled factory with well-trained employees that know they will have a job tomorrow creates a higher quality product. People that work regular shifts is the best all-around method for home construction.

    As always, thanks so much for reading Mobile Home Living!

    Updated April 13, 2019 (MMHL does not endorse or recommend one manufacturer over another. Each manufacturer has their own strengths and weaknesses.)  

  • 5 Luxury Manufactured Homes for Sale in California (January 2019)

    For a girl that grew up in a hollow in southern West Virginia, California was the epitome of cool. It has everything: beaches, mountains, sunshine, and snow. It even has movie stars and mobile homes! Not just your ordinary mobile homes though, they have a ton of high-end luxury manufactured homes for sale in California.

    I picked these 5 manufactured homes for sale because they are each beautiful. They are also really expensive though perhaps not for the booming California economy.

    116 Pali Drive

    mid-century modern manufactured home for sale in California living room 6

    1 Bed/1 Bath

    116 Pali Drive Palm Springs, CA

    $173,800

    This 1 Bed/1 Bath small manufactured home is in Palm Canyon Mobile Club, a park that has recently gone through a rebirth. The park is all ages and has 229 spaces. The majority of the homes are vintage with 100 new manufactured homes installed recently. Monthly space rent: $682.50. This park is evolving and I look forward to seeing it thrive in the years ahead.

    mid-century modern manufactured home for sale in California living room 2mid-century modern manufactured home for sale in California living room 2

    The home had been on the market for a couple of months and was changed to a sold on Christmas Eve – that was a great present for someone!

    The list of features includes quartz counters, designer hardware, and clerestory windows.

    mid-century modern manufactured home for sale in California living room area

    6 Yosemite Road

    manufactured home for sale in san rafeal California 0005

    3 Bed/2 Bath

    6 Yosemite Rd San Rafael, CA

    $497,000

    California has the 5th largest economy in the world and a real estate crisis in the making because there are just too many people and not enough homes. This means homes like this luxury manufactured home for sale in California are going for $497,000.

    manufactured home for sale in California san rafeal - living room

    Half a million dollars will buy you a manufactured home in a park beside a small stream. The interior is spacious and clean and has a great stone fireplace that has been painted white and gorgeous flooring. Space rent is $970 a month.

    manufactured home for sale in California san rafeal - kitchen

    You can learn more about this luxury manufactured home for sale here.

    manufactured home for sale in California san rafeal - Minimal Modern kitchen counter

    63 Paradise Cove Road

    1 Bed/1 Bath

    63 Paradise Cove Rd Malibu, CA

    $749,000

    Low supply and high demand make for happy sellers and sad buyers, except in this case. The buyer of this $749,000 luxury mobile home in California will be a very happy person indeed. It’s retro-freaking-fabulous!

    I cried like a baby when I finally got to visit Malibu, CA in September. My daughter still makes fun of me! I didn’t get to tour the Paradise Cove Park but we did get to eat lunch at the Paradise Cove Cafe which is right below the park. I got to see a couple homes!

    We were going to sneak up the stairs from the cafe but I figured the park tenants deserved privacy and respect. I would have loved to see this home up close, though! Maybe someday I’ll gain legitimate access to the park. Till then, I’ll keep looking at all the luxury manufactured homes for sale in California online.

    The listing calls this home an ultra-hip surf retreat and I agree even though I don’t surf.

    The park sits atop a rolling bluff above the Pacific Ocean but only a few homes in the park have ocean views. This home doesn’t have the view but it does have a small creek nearby. The listing describes this home better than I can:

    “This super cool, vintage, Flamingo home has been given a clean, sophisticated makeover with wide plank floors, marble and stone finishes, and a crisp black and white pallet. Designer details maximize the storage and the space of this home and create an ideal, chill seaside weekend retreat….A Premier location and a short stroll or golf cart ride away from one of the most coveted stretches of beach/surf in Southern California.”

    You can learn more about the home at Realtor.com.

    23777 Mulholland Hwy Spc 151

    4 Bed/3 Bath

    23777 Mulholland Hwy Spc 151 Calabasas, CA

    $349,000

    This luxury manufactured home for sale in California has 1,800 square feet of living space that includes 4 bedrooms and 3 baths. It’s in a small community and it looks like the lot rent and HOA fees are around $1700 a month (if I’m reading the listing right).

    The listing states that the entire home has been gutted and remodeled. Features include new roofing, plumbing, windows, flooring, framing, insulation, electrical, tankless water heater, drywall, and new wood siding. The asking price is $349,000 which may be a very good deal considering the entire home is new.

    You can see this home’s listing here.

    Home decor is an art form, especially with this home! The realtor used an app to add furniture and decor to the photos and they did a great job! I love the subtle colors.

    It’s difficult to make Ikea style cabinetry seem warm and welcoming. The Swedish kitchen units are known for their easy-to-clean and sleek functionality but whoever designed this double wide’s kitchen made it work nicely. It’s not too modern or too traditional and with the right bar stools and a little color, this is going to make one gorgeous space.

    23 Bali Lane

    4 Bed/3 Bath/

    23 Bali Ln, Pacific Palisades, CA

    $569,000

    This last home is also in Palisades, CA and goes for a little more than half a million. Yep, half a million and the agent states they’ve drastically reduced the price. But, there’s a reason for that price..

    This home sits on the top row of the Pointe Dume Park in Palos Verde, across from Will Roger’s Beach. No other homes are above you which is rare for homes with ocean views in that area.

    The agent states the home is luxury and has a chef’s kitchen with high ceilings and open floor plan. It also includes custom fixtures and hardware, wide plank flooring, and new Samsung appliances.

    This home has an epic view so the price makes sense. I could definitely get used to watching the sunset from here.

    Here’s the listing to the home on Realtor.com

    Luxury Manufactured Home for Sale in California

    It’s hard to wrap my head around the price of these luxury manufactured homes for sale in California but the state has the highest personal income in the nation, gorgeous views, and perfect weather so it makes sense to have more expensive property.

    Have you found an awesome manufactured home for sale? Please share them with us! We love to see beautiful homes!

    PS Here’s a pic of me at the Paradise Cove Cafe! Just getting that close was a dream come true!

    As always, thank you for reading Mobile Home Living!

  • Exploring New Manufactured Home Design: Clayton’s Stockton Double Wide

    With so many choices available for multi-sectional manufactured homes, it’s important for builders to make their double wide home design stand out. Clayton Homes is doing that with their Stockton model.

    The Stockton from Clayton Homes has an oddly vintage look to it while still showcasing modern popular trends. Wood is a major theme in this home. It has tons of wood paneling and wood accents in a deep chestnut brown that reminds me of my father’s 1986 model double wide wood trim.

    Clayton was going for a traditional farmhouse or ranch look and they nailed it but maybe they nailed it a little too much?

    The Stockton’s Stats

    From 2,077 Square Feet with 4 Beds, 2 Baths

    Priced from $92,800 (without land)

     

    Marriage Line Divorce?

    When purchasing a new manufactured home one of the most important things you will need to consider is which floor plan will fit your needs best. The Stockton would be a good choice if you are looking for a completely open floor plan.

    Read more about manufactured home floor plans here.

    double-wide-home-design-interiorMarriage Line Divorce

    It’s pretty rare to have such a open space in a double wide. Readers often ask us how to open up a marriage line but we don’t recommend marriage line modifications at all because there is always an issue down the road regardless of how well it was done. For those that want an open floor plan with minimal marriage line wall, this double wide home design is a great choice.

    The reason the home has such an open floor plan is the absence of a marriage wall. If you’ve read any of our previous articles about manufactured home construction, you’ll know that the marriage line is a load-bearing wall for both sections of a double wide – in other words, it’s pretty important.

    double-wide-home-design-kitchen-into-family-room

    Busy Kitchen

    The kitchen in The Stockton plan offers a lot of sought-after elements. The breakfast counter is one of the largest we’ve seen in a recent double wide home design.

    Dark appliances, distressed white cabinetry, ‘bronze’ range hoods, wooden ceiling beams, and butcherblock countertops are all popular trends in kitchen design. But should they all be one place?

     

    double-wide-home-design-kitchen-2

     

    The images shown include all the upgrades the builder offers: dishwasher, windows on both sides of the stove, and the fancy range hood.

    But why is a dishwasher considered an upgrade? 

    It’s 2018 and we think dishwashers should be a standard feature. It looks like you can choose which side of the sink you want the dishwasher on so I guess that’s why it’s an ‘upgrade’ option?

     

    the-stockton-by-Clayton-Homes-dining room with barn doors

    Why is a dishwasher an upgrade in a 2018 model home? Am I missing something here?

    The kitchen is busy with lots of different woods and materials and direction. I think if they’d change the faux backsplash that looks like a hybrid between ceramic tile and shiplap to a less busy design it would look a lot better with the faux butcherblock counters. What do you think?

     

    the-stockton-by-Clayton-Homes-dining room with barn doors
    The Barn Doors Hide Additional Storage Space In The Dining Room.

     

    A trendy sliding barn door hides additional storage space in the dining area.

    Living Room and Family Room/Den

    This is the den or family room beside the kitchen. Here’s a good look at the walls. They’ve continued the kitchen’s materials and paired whitewashed beadboard with wood paneling. It’s a lot to take in but works well for people that appreciate the traditional home decor.

     

    the-stockton-living-roomden-

     

    The living room walls are light colored VOG panels with matching strips. The dark ceiling trim matches the rest of the home. Beige carpet gives the space a nice grounding.

    the-stockton-manufactured-home - living room
    A Lighter Living Room Breaks Up All The Dark Wood In The Home.

    Master Bedroom and Bathroom 

    The master suite offers a transom window upgrade above the bed and I definitely would pay extra for that.

    Transom style windows allow a ton of light into the room without losing wall space or privacy. Transom windows offer a nice contrast to the exterior of a home as well. I haven’t met a transom window I didn’t like!

     

    double-wide-home-design-master-bedroom
    Transom Windows Are Awesome! 

    The master bathroom is a true throwback to the late 1970s mobile home design. The boxed lighting above the sinks is exactly how our 1978 bathroom was done!

    Clayton has reversed the paneling style in the bathroom. The white paneling is on top of the wood paneling. The wood flooring and the wood paneling is a lot of lines and texture for one space. Fortunately, the whitewashed cabinetry breaks up the space a bit.

     

    double wide home design-master tub
    The Tubs Are Pretty But Not Very Practical.

    the-stocktons-master-bathroom-
    3 Different Wood Designs, 3 Different White Textures…….

    The walk-in shower is a great size but in this image alone we have 3 different kinds of wood and 3 different types of white. In one space.

    Ok. I’m done. I can’t do this anymore. It’s time to be honest…..

    This Double Wide Home Design is a Hot Mess

    I’ve tried to be nice and only highlight the good but this double wide home design is a hot mess, y’all.

    I’ve always tried to be positive here on Mobile Home Living because mobile homes and those living in them suffer enough negativity but I have to break protocol on this one. The Stockton model by Clayton Homes is a mess of materials and lines and textures and surfaces. The floor plan is great, though.

    What do you think? Am I being too harsh? Let me know in the comment section below! 

     

    As always, thank you for reading Mobile Home Living! 

    Note: we are not affiliated with Clayton Homes or any builders or any dealers of any brand. All opinions are our own. 

  • 10 Gorgeous Manufactured Home Models on the Market Today

    10 Gorgeous Manufactured Home Models on the Market Today

    As we’ve previously mentioned, manufactured homes are very much a ‘get what you pay for’ product and that’s the beauty of them. You can buy the most basic model offered and fix it up to your exact liking or you can spend more and get the latest bells and whistles that the builder offers. These 10 manufactured home models have all the bells and whistles you could want.

    The Most Important Features New Manufactured Home Models Should Have

    Whether you get the basic model or the fanciest, there are a few features you may want to consider getting upgraded.

    • Higher Pitch
    • Minimum 2×6 Framing
    • Exterior Sheathing
    • Plywood Subfloor
    • Upgraded Windows and Doors

    Learn about the 10 best upgrades you should get when buying a new manufactured home here. 

    Deciding which manufactured home model you want is tough.  Luckily, there are dozens of models offered by dozens of builders that you can choose from. There is also a lot of great information here on Mobile Home Living’s buying section.

    Our friend Steve, from the Facebook group Manufactured Housing, shares the newest manufactured home models. We persuaded him to share what he has learned about a few of the homes.

    Keep in mind, these are only our opinions of these modern manufactured home models from what we can see and read from the websites that showcase these homes. We have no preference of one manufacturer over another nor do we recommend one builder or dealer over another. 

    A Look at 10 Modern Manufactured Home Models 

    1. The Anniversary From Clayton Homes

    The price for this home, with full setup (including heat pump), is around $69,000 plus tax. Note, this also includes the OSB wrap around the exterior, not the standard styrofoam under the siding. We think all manufactured homes should have the OSB upgrade.

    This 16×80 single wide has some optional packages that really dress up the interior of the home. First, the optional full sheetrock package replaces the more rustic touches of the home especially with the addition of the white molding.

    There is also a stainless steel appliance package that dresses up the kitchen. Several cabinets, in both the kitchen and the dining room, plus an eat-in bar creates the modern HGTV kitchen everyone wants these days. A pantry in the kitchen, which is rare in single wides, completes the kitchen.

    The biggest drawback of the floor plan is the mandatory bookcase and entertainment center in the living room. These don’t appear to be optional though I’m sure many people would rather have the wall space. It seems to be an easy thing to make optional?

    Another missed floorplan opportunity is the missing exterior door for the laundry room. Lots of us like to use our laundry room as a mudroom.

    modern manufactured home models-anniversary living room
    The Entertainment Center Seems To Be A Staple Of Most New Designs.

    modern manufactured home models-anniversary kitchen
    A Simple But Well Designed Kitchen.

    modern manufactured home models-anniversary dining
    Sliding Glass Door Is A Popular Option In The Dining Room.

     

    modern manufactured home models-anniversary master bath
    Nice Master Bath!

     

    modern manufactured home models-anniversary exterior
    The Exterior Is Pretty Basic. Where Are The Windows?

    Learn How to Make Your Manufactured Home Look More Like a Site-Built Home Here. 

    2. The Foundation 700 by Champion Homes

    The Foundation 700 is part of the Foundations Series by Champion Homes that includes both single and double wides. This is one of their mid-level double wide models and retails for approximately $75,900 before taxes. It is a nice representation of a mid-level ‘off the lot’ double wide available now.

    There seems to be only one option that can be changed in the floor plan; the master tub is optional. The kitchen offers an eat-in breakfast bar and plenty of counter space. However, the countertops in the kitchen and bathroom are both laminate and the kitchen has the vertical oven hood that is so popular right now. The con to the large oven hoods is the loss of cabinet space but they certainly create a nice focal point for the kitchen. It’s definitely a personal preference item.   

    The home has a nice open floor layout perfect for entertaining. If you are a fan of built-ins that many manufactured home models are featuring right now, this model has you covered. The large entertainment center along with the coat and shoe rack in the mudroom are all built-in. 

    modern manufactured home models-Foundations 700 living room 2
    The Entertainment And Bookcase Blend Well With The Room.

    modern manufactured home models-foundations kitchen
    Eat-In Breakfast Bars Are Popular Options In Manufactured Home Models.

     

    modern manufacutered home models-Foundations 700 master bathroom 2
    Notice The Easy Access Panel To The Plumbing?

     

    modern manufactured home models-Foundations 700 utility room
    The Built-Ins In The Mudroom Can Come In Handy!

     

    modern manufactured home models-foundation 700 exterior
    The Exterior Has A Nice Clean Look With Lots Of Windows.

     

    3. The Commissioner From Norris

    The Commissioner is part of the Executive series manufactured by Norris. The retail price is between $80-90,000 before setup and heat pump installation.

    Several things come to mind when exploring this model. First, there’s a good bit of storage in the kitchen which is never a bad thing. This manufactured home model may not be the right home for you if the open floor plan is your favorite layout. The dining area is away from the living room which might interrupt the flow of the home especially if you entertain regularly.

    In this new modern manufactured home model, there is a gorgeous soaker tub surrounded by windows. We have a love-hate relationship with windows around tubs that we’ve written about before. While some custom wooden shades would be great, they are expensive, and should probably be included.

    The cabinets look to be made of laminated particle board which is a bit of con at the price point. The flooring is vinyl covering and carpet.

     

     

    modern manufactured home models-commissioner living room
    Large Living Room.

     

    modern manufactured home models-commissioner kitchen 2

     

     

    modern manufactured home models-commissioner master bath
    Not Sure Why These Bathroom Windows Are So Popular.

     

    modern manufactured home models-commissioner exterior
    A Porch Would Be A Nice Addition To This Home.

     

    4. The Urban Homestead from Palm Harbor

    The Urban Homesteader is Palm Harbor’s double-wide version of their single-wide the Santa Fe. It is available in two sizes, 31’ and 28’ lengths. The home retails with a base price of $100,000 and goes upward of $130,000 depending on size and options.

    This home’s design has a neat modern/rustic feel with trendy features that are popular right now like the sliding barn door and the trey ceilings in the master bedroom. As with all trends, they can and will go out of style. The question is just how out of style they will eventually become.

     

    modern manufactured home models-homestead living room (1)
    A Buyer May Consider An Upgrade To The Living Room Lighting.

     

    modern manufactured home models-homestead kitchen
    The Rustic Kitchen Is Designed Nicely.

     

    modern manufactured home models-homestead dining room
    Some May Prefer A Sliding Glass Door In The Dining Room.

     

    modern manufactured home models-urban homesteader exterior
    Typical Exterior Design.

    Read about 27 Manufactured Home Builders You Should Know About here. 

    5. Model K1676H2 from Karsten

    This model is only available in Western states and starts at $55,900 before setup.

    The most noted feature of these homes is the transom windows throughout the home. I love transom windows! While they would be a pain to keep clean they add a ton of natural light so it’s worth the extra effort to clean.

    This model offers built-ins in the dining and living room and the home flows with an open floor plan. Like many new models, there are several options that can be upgraded, including appliances and a choice of color for the cabinets, along with a ceiling upgrade.

     

    modern manufactured home models-karsten living room
    Natural Light Floods The Room.

     

    modern manufactured home models-karsten kitchen
    The Kitchen Is Set-Up Nicely.

     

    modern manufactured home models-karsten master bedroom
    Transom Windows Provide Extra Light.

     

    modern manufactured home models-karsten master bath
    Would You Prefer A Linen Closet Instead Of The Tub?

     

    modern manufactured home models-karsten exterior
    Love Those Windows!

    6. The Lloyd From Cavalier Homes

    The Lloyd from Cavalier Homes is a model that is full of options. It is a 3 bedroom home with a 4th flex room and retails around $118,000 (but would probably be much more if adding all the options available).

    This home is huge! Not only does it have the 4 bedrooms, it also has a hobby room/office room and a foyer.

    This home has all the upgrades we most recommend: Thermopane windows, OSB wrapped exterior, and upgraded doors are available. Adding a fireplace is another upgrade you can add.

    Once again, we see the popular trend of placing a soaker tub in front of windows in the master bath.  Perhaps, a better use would be adding transom windows which would still allow natural light but protect privacy?

     

    modern manufactured home models-the lloyd living room
    Fireplaces Can Make A Living Room Cozy.

     

    modern manufactured home models-the lloyd kitchen (2)
    Love The White Cabinets!

     

    modern manufactured home models-the lloyd dining room
    So Many Places To Add Style.

     

    modern manufactured home models-the lloyd theater room
    Movie Anyone?

     

    modern manufactured home models-the lloyd master bath
    Window Of Wonder..as In Wonder Why There’S A Window There?

     

    modern manufactured home models-the lloyd exterior
    The Exterior Is Gorgeous And That High Pitch Is Everything!

     

    7. The Madison XL From Champion Homes

    The Madison XL is offered by Champion and has a starting price at around $69,900 before setup.

    The standard option of this model is a 3 bedroom/2 bath and there are many options available. You can upgrade the bathroom to a larger shower or include a soaker tub. You can also opt out of the third bedroom and have a larger second bedroom and bath. That’s just a few of the options we saw available with the floor plan.

     

    modern manufactured home models-madison xl living room
    The Home Flows From One Room To Another.

     

    modern manufactured home models-madison xl kitchen
    What Do You Think Of The New Range Hoods?

     

    modern manufactured home models-madison xl laundry room

     

    modern manufactured home models-madison xl master shower
    Large Shower For A Single Wide.

    modern manufactured home models-madison xl back exterior
    A Look At The Home From The Back.

    8.The Santa Rosa By Giles Industries

    The Santa Rosa is manufactured by Giles Industries and prices start at around $55,000 for the standard home before setup.

    It’s a mid-level design home. It has the traditional inexpensive brown trim around the doors, ceilings, and windows.

    There is a good use of space in most of the home though the master bath seems to have an awkward setup. The master closet is in the bathroom but doesn’t seem to offer much space from the images (it’s hard to judge homes from images).

    This model offers some upgrades and can be converted into two large bedrooms rather than three. Generally speaking, the home is stylish but may not be very practical. The plus side is that homes manufactured by Giles typically hold up well over the years.

     

    modern manufactured home models-santa rosa living room
    The Living Room Has A Nice Size.

     

    modern manufactured home models-santa rosa kitchen
    Open Floor Plan Describes This Home.

     

    modern manufactured home models-santa rosa master bath
    Not Sure About The Closet Set-Up.

     

    modern manufactured home models-santa rosa master vanity
    The Vanity Design Is Unique.

     

    modern manufactured home models-santa rosa exterior
    Notice The Difference Landscaping Can Make In These Photos? I Adore The Exterior

    9. The Ridgecrest LE 6010 from Champion Home Builders

    The Ridgecrest LE 6010 is one of several designs from the Champion Homes. According to the site, this new manufactured home model will have a price range from $89,000-$104,900.

     

    This home, with 2000 square feet of living space, has a different flow to it than most open floor plans. Y’all know how I love end kitchens and that includes when dining rooms are at the end or corner.

    The kitchen has two eat-in locations, a center island that has room for barstools opposite the sink and a divider from the living room into the kitchen can also be used as an eat-in spot.

     

    modern manufactured home models-Ridgecrest 6010 living room
    The Reclaimed Wood Look Is Scattered Throughout The Home.

     

    modern manufactured home models-Ridgecrest 6010 dining and kitchen
    The Kitchen Has An Unusual Setup.

     

    modern manufactured home models-Ridgecrest 6010 dining and kitchen 1 (1)
    Barn Doors To Hide The Dining Room Hutch.

     

    modern manufactured home models-Ridgecrest 6010 bill center
    Need A Workspace?

     

    modern manufactured home models-ridgecrest exterior
    If You Aren’T Looking To Add A Porch, This Design Is Perfect.

     

    10. The Garner From Titan Factory Direct

    A look at modern manufactured home models would not be complete without adding a tiny home design.

    I dream of placing a park model home on a little pond close to my grandmother in southern WV someday (one can dream!). Disclaimer: park model homes are typically classified as recreational vehicles but we believe the designs are great and should be used a lot more in modern manufactured home models.

    The Garner from Titan Factory Direct offers all the features of bigger manufactured homes just on a smaller scale.

    The layout of this tiny home offers one bedroom as well as a loft space. There is also a nice size covered porch. Park models are becoming more popular with retirees who are looking to downsize and can be found in many mobile home communities as well (though we need to get land use and park restrictions lifted across the nation).

    Here’s the best thing about park models: the typical price range starts at less than $20,000 but can go much higher when upgrades are made. These are the TRUE tiny homes, not those $75,000 home made things that you see on TV.

     

    modern manufactured home models-park model kitchen
    Good Use Of Space Makes These Homes Seem Larger.

     

    modern manufactured home models-park model loft
    Nice Size Loft Space.

     

    modern manufactured home models-park model exterior
    Looks Like A Cabin In The Woods!

     

    From These 10 modern manufactured home models are examples of the options and price ranges that are on the market at the moment. All of these homes can be upgraded and modified to work for anyone.

    Thanks for reading Mobile Home Living®.